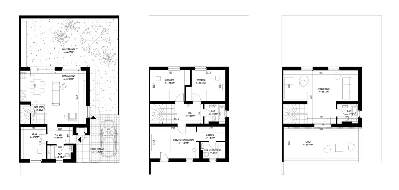
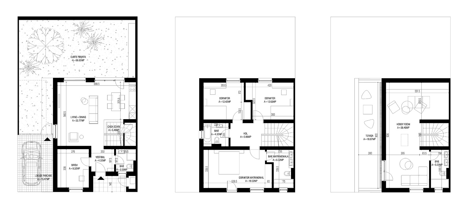
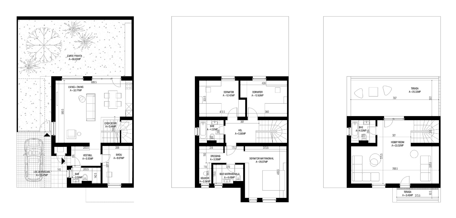
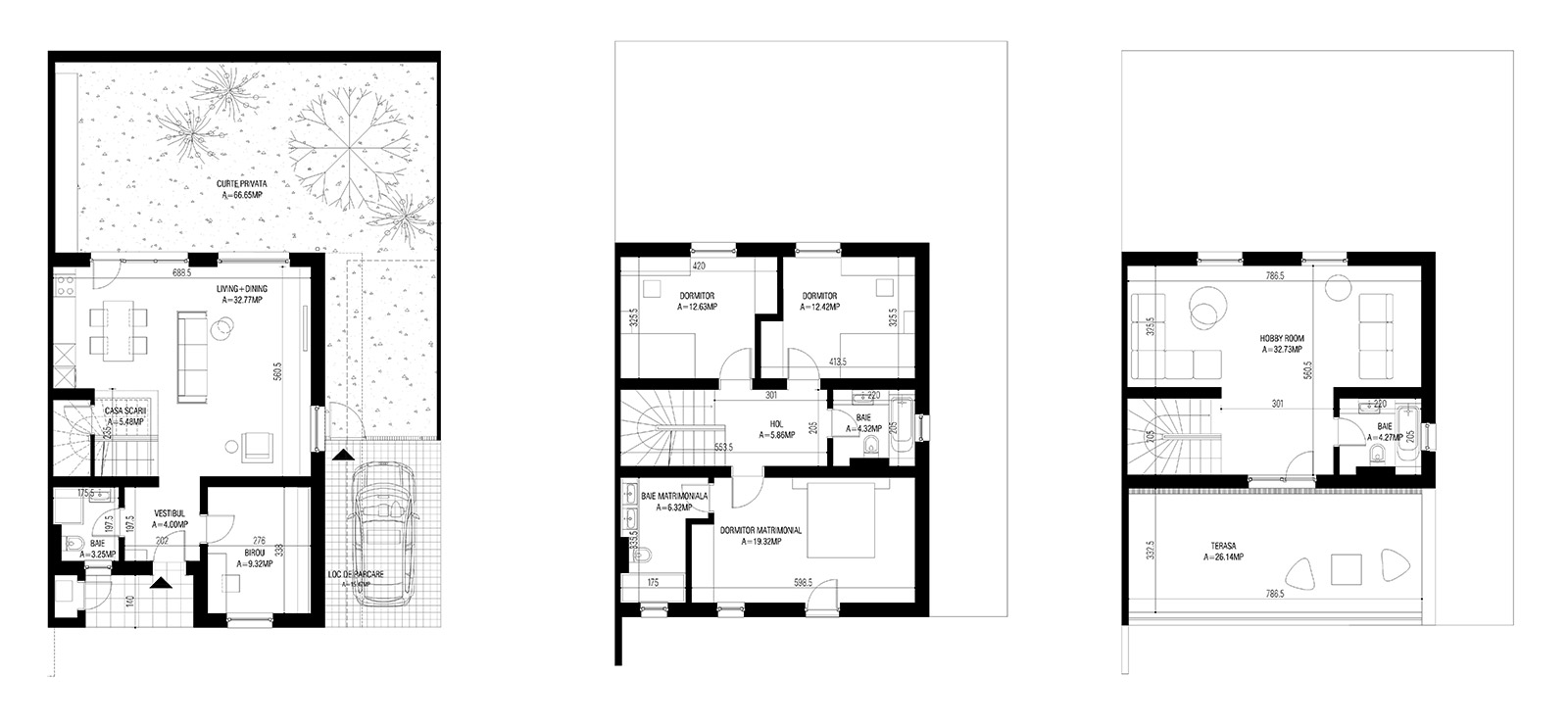
Located on a narrow plot in a developing area outside of Bucharest, this project aims to balance a design brief that requested semi-detached, affordable houses and the need for individualisation that contemporary real estate developments more and more often try to accommodate.
Using two or three variations for each level in creating the housing units resulted in a wide variety of volumes, thus avoiding the unpopular appearance of identical rows of houses.









