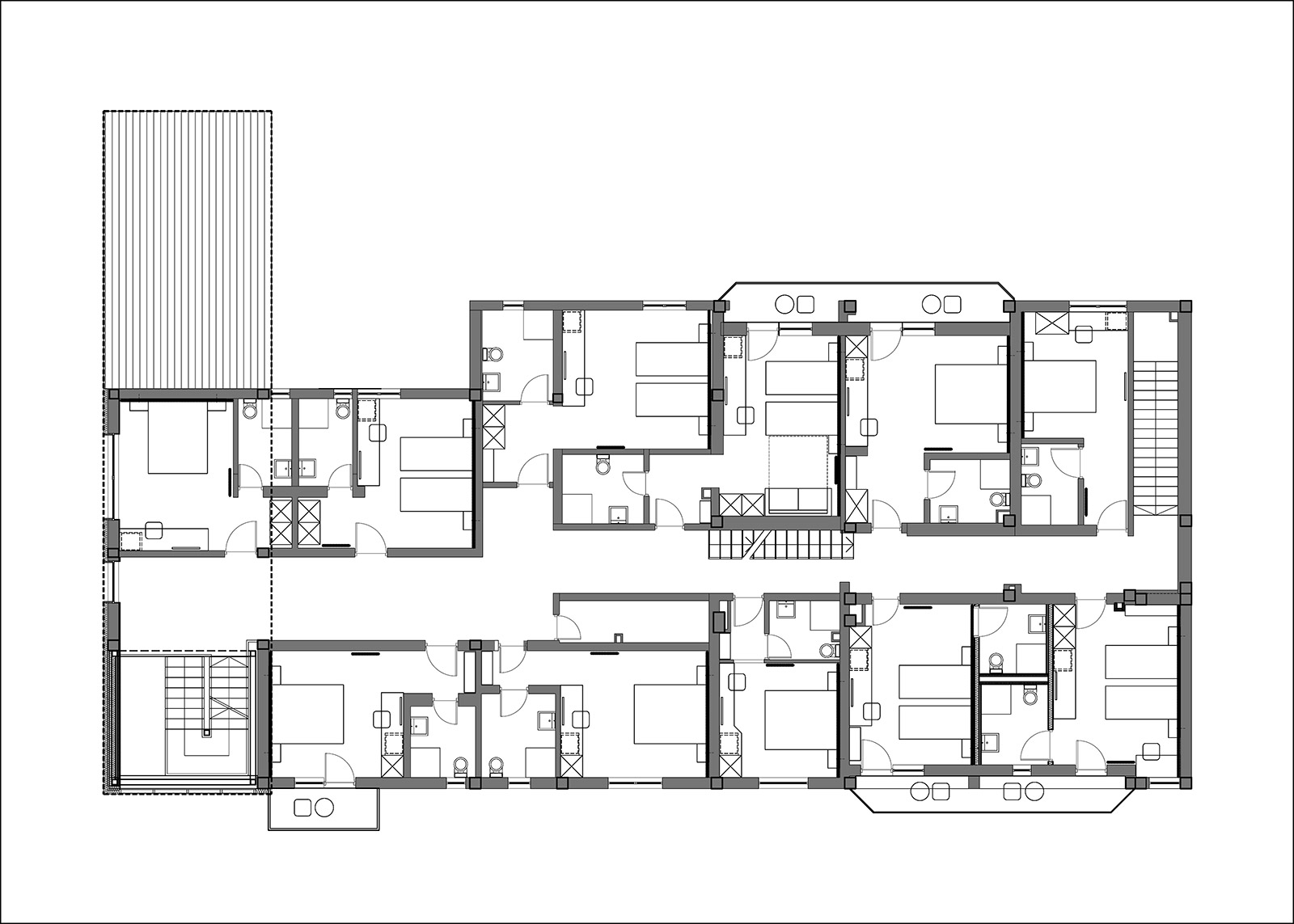
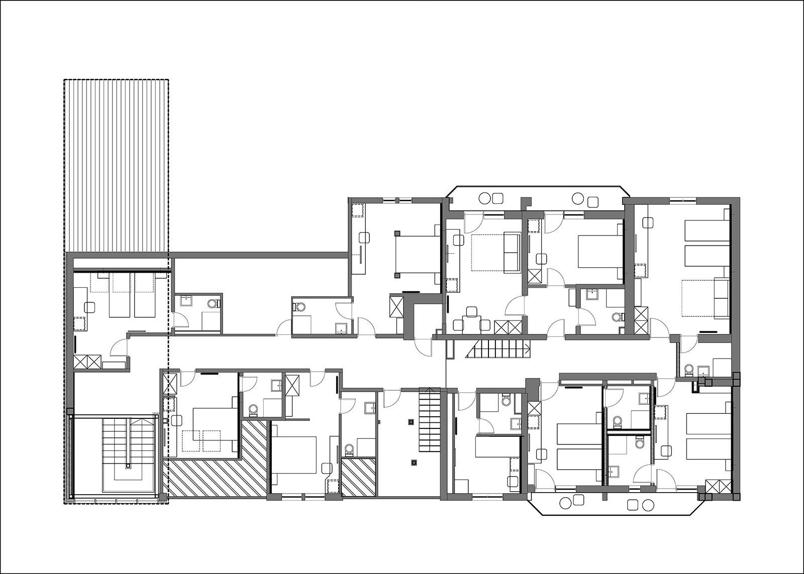
The brief involved modernizing an existing structure to turn it into a new hotel.
Given that a lot of works needed to focus on interior refurbishment, the design tactics aimed to symultaneously solve the programmatic, technical, aesthetic and representational requirements while keeping the exterior intervention to a minimum. Thus the project is focused on the street bay of the building which it redevelops to incorporate the new main staircase, the lobby and the link to the wine cellar.
This constructs a new public image of the hotel and the building’s improved relationship with the street.
















