Pressburg Habitat

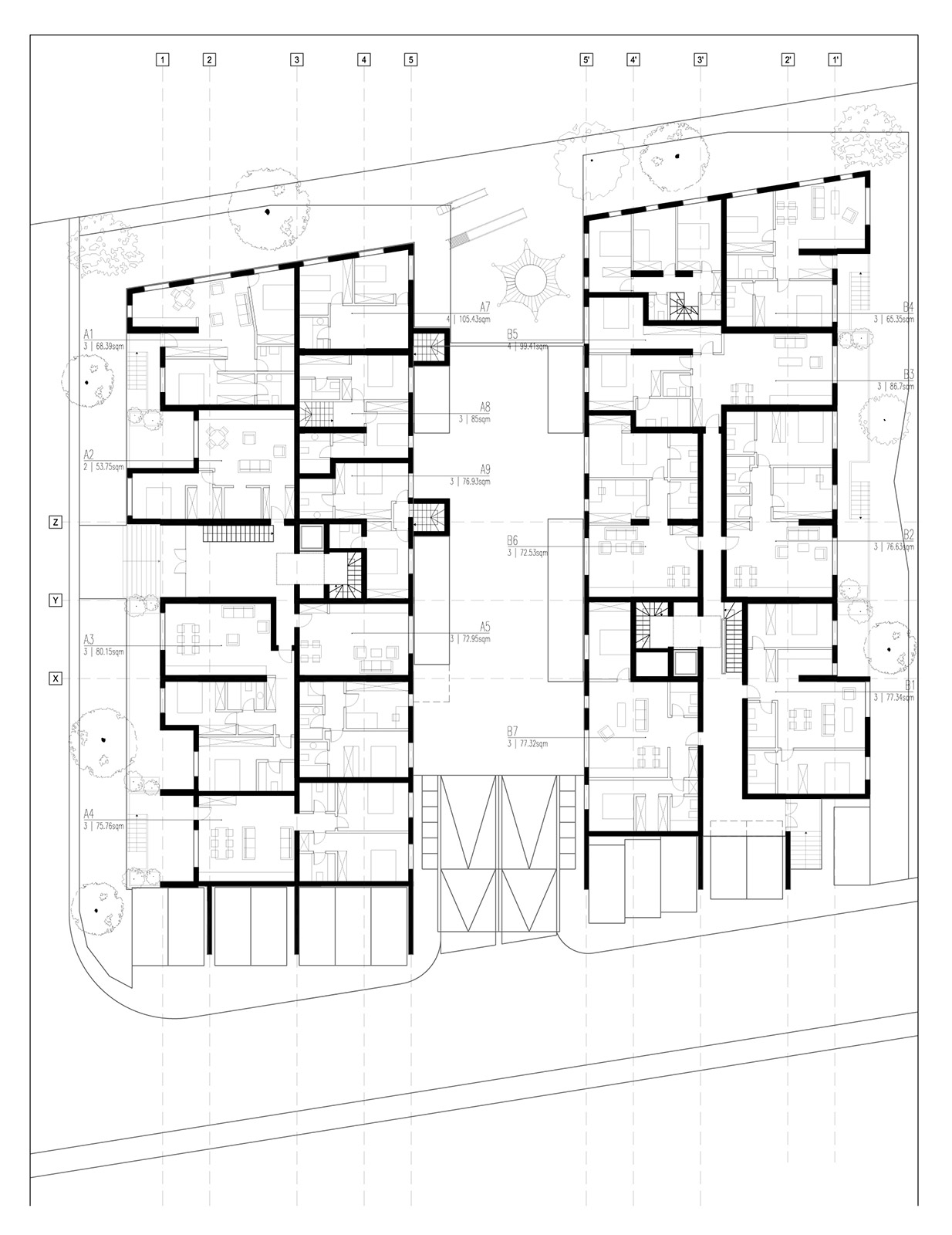
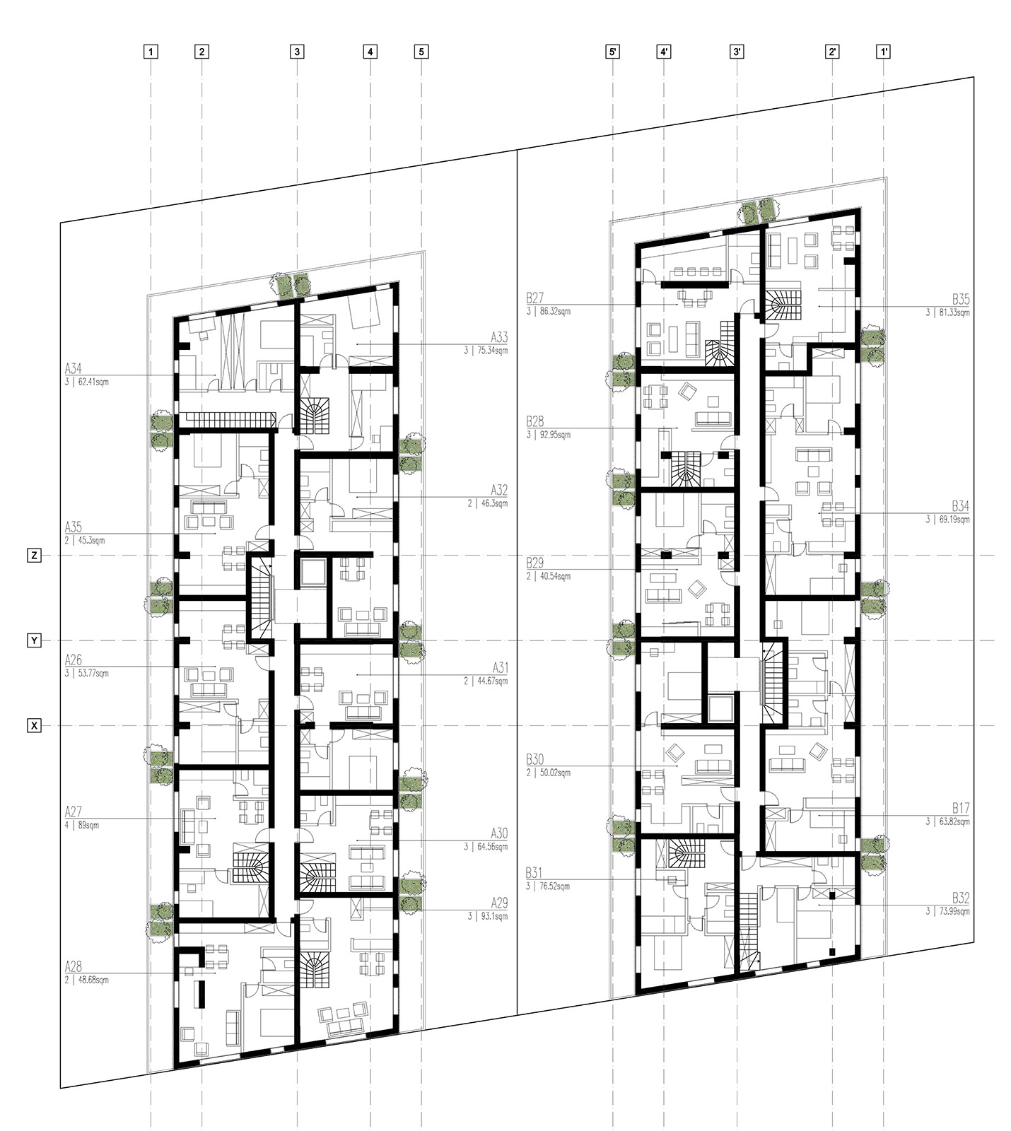
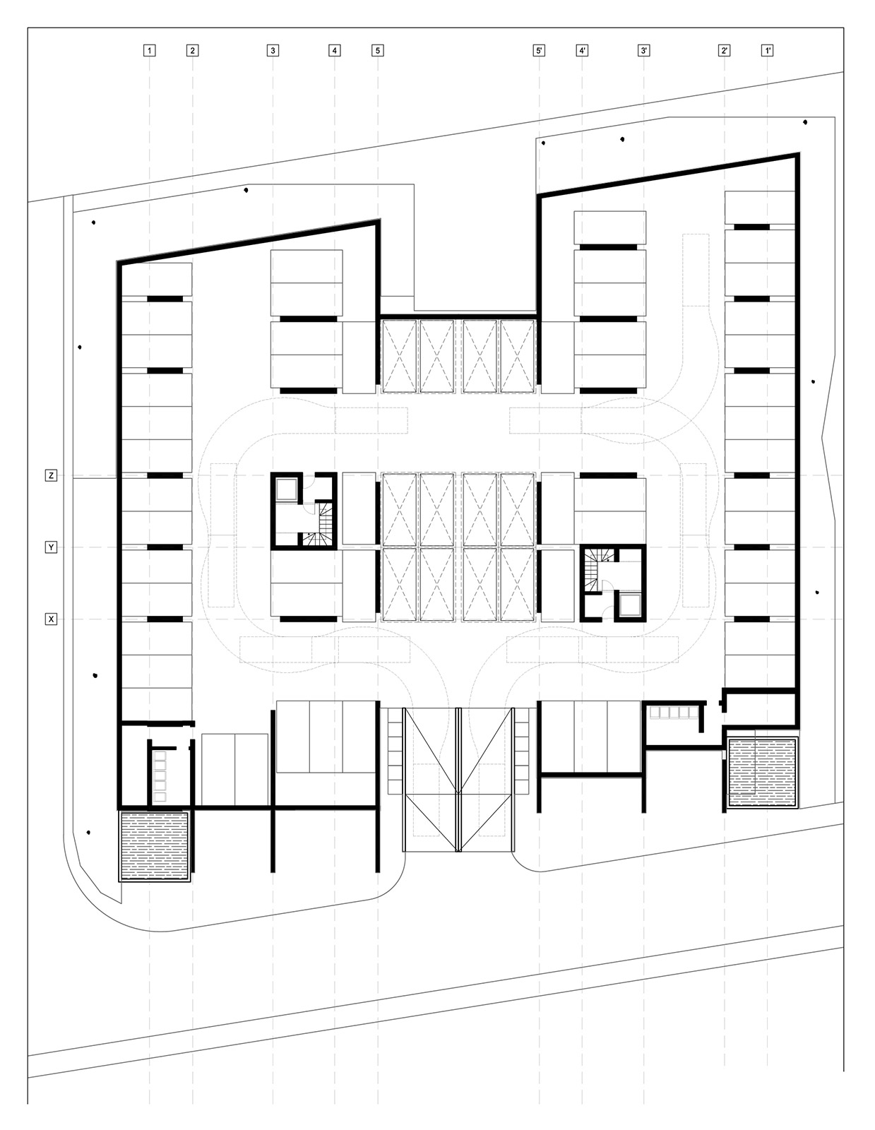
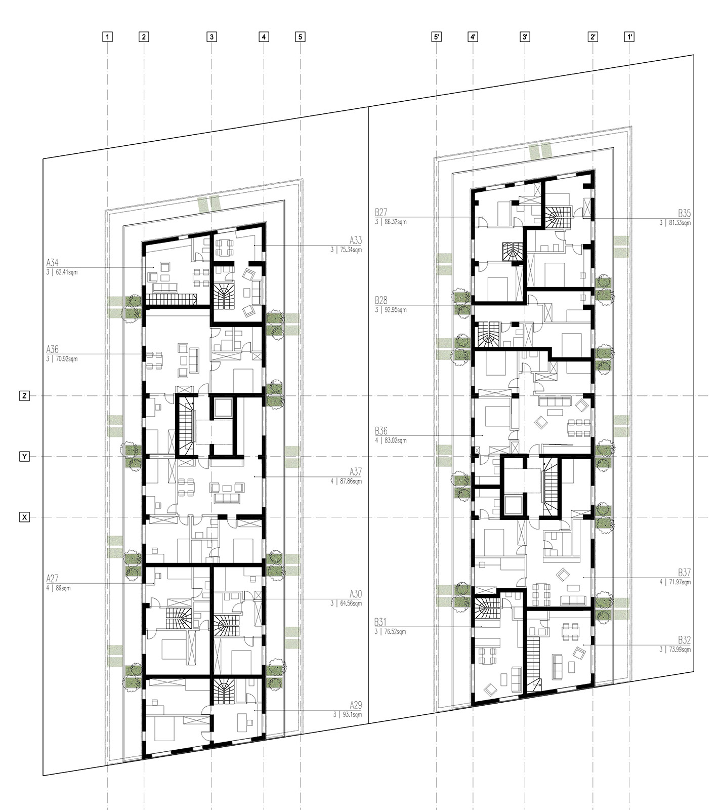
Pressburg Habitat – 8175 sqm property divided into 6 plots. 6 blocks with 37 apartments each and average apartment size of 64.8 sqm. Balconies, loggias, terraces mae up 18% of usable area. 45 parking spaces per block are required.

The area in front of the façade opposing the ramp should be dedicated as green space. The combination of green space of two (mirrored) blocks shall form a green court yard. One of these yards shall house a children’s playground.

Architectural design: Republic of Architects / Emil Burbea-Milescu, Radu Tudor Ponta, Cristian Nae, Răzvan Delcea, Andrei Voica
Structural engineering: Rantech Proiect / Rareş Bentu
MEP Engineering: AMS INSTAL / Ana Maria Florescu
3D Renderings: Cristian Nae

Year: 2018

keyboard_arrow_up